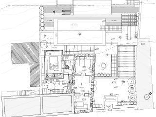
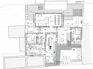
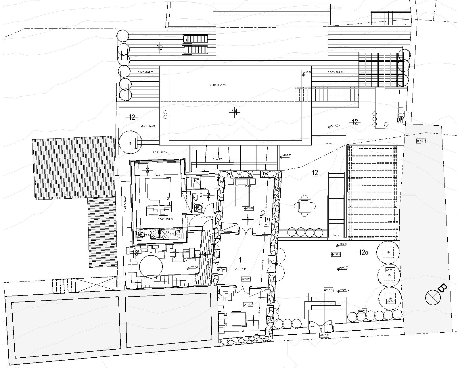
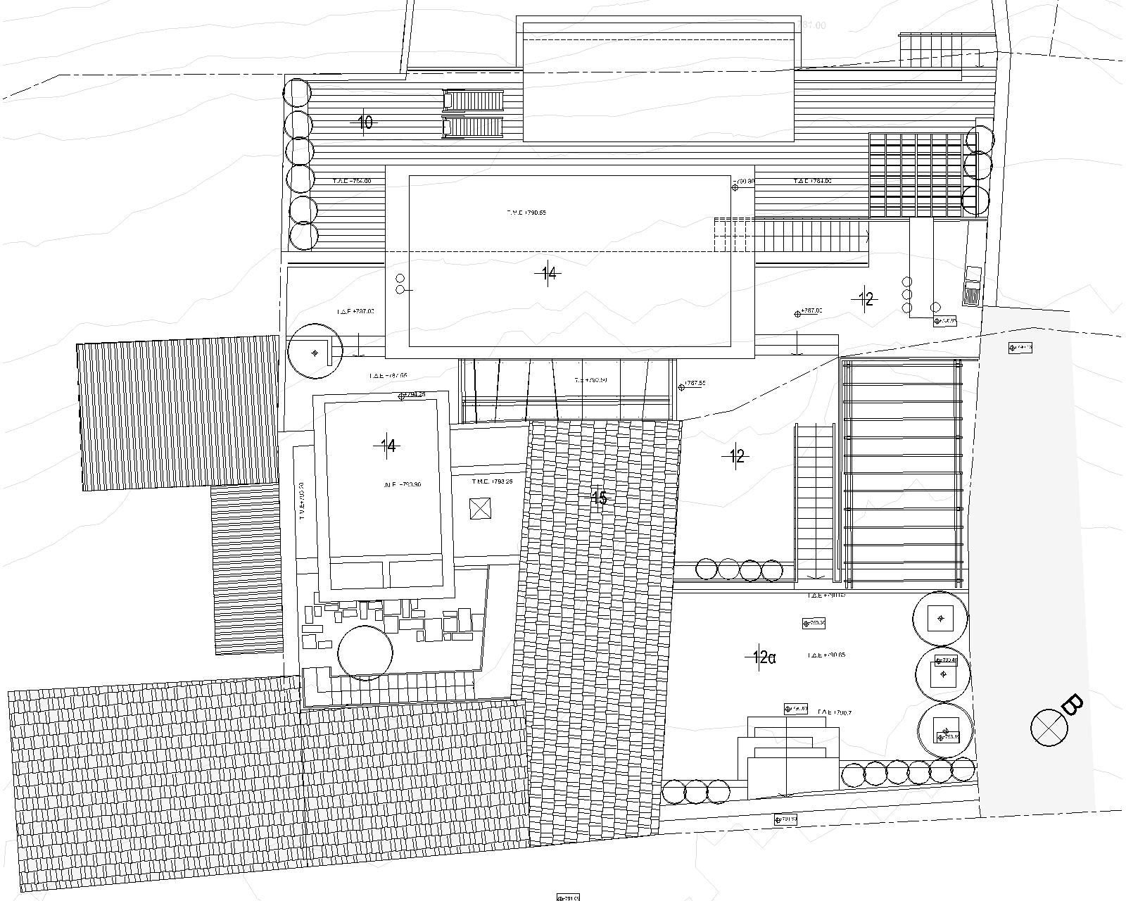
Arsos residence