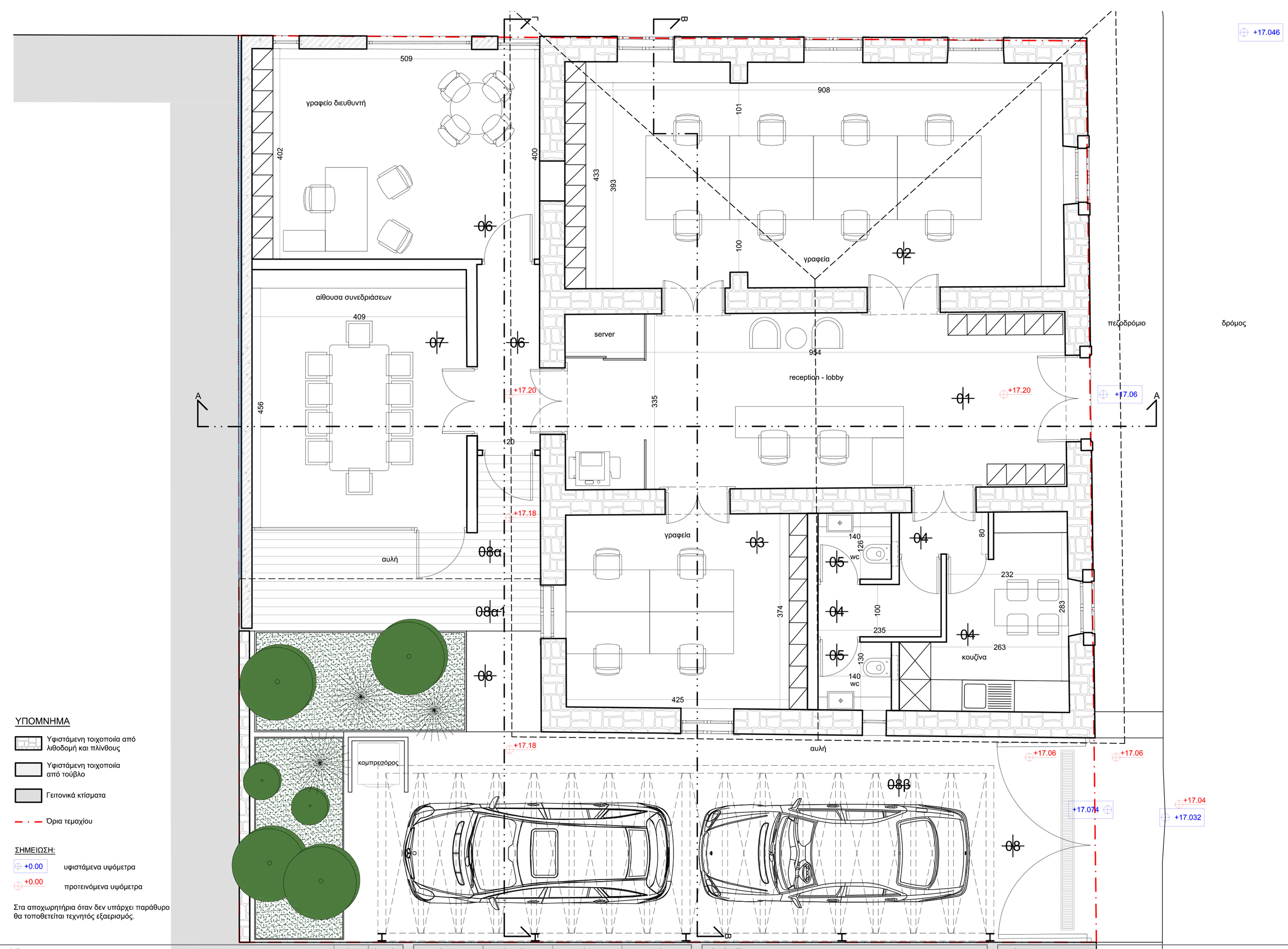
Listed building Ayia Triada