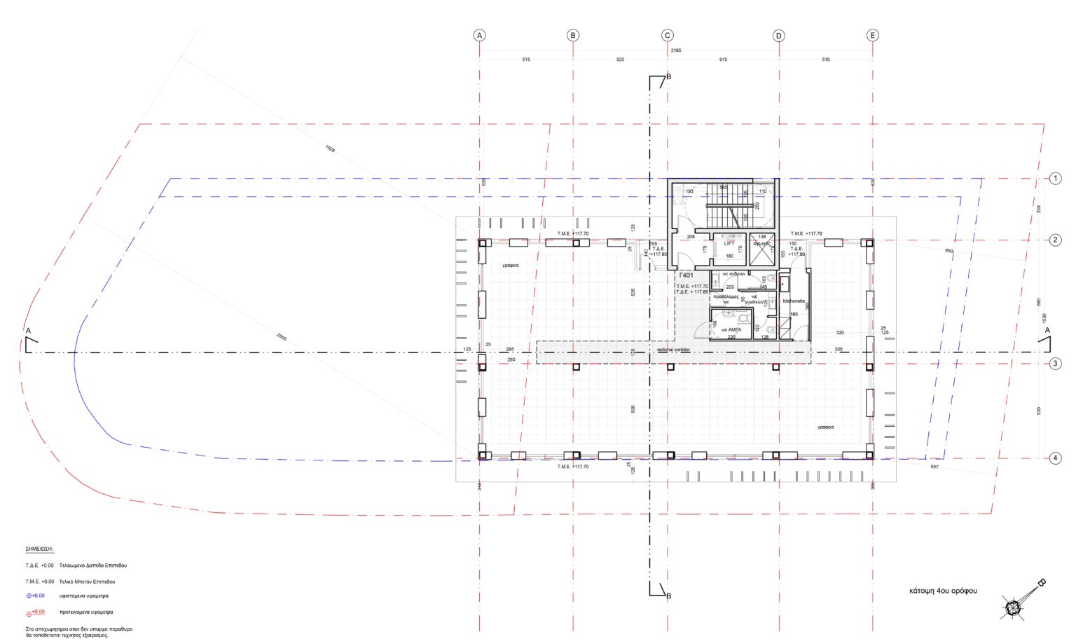
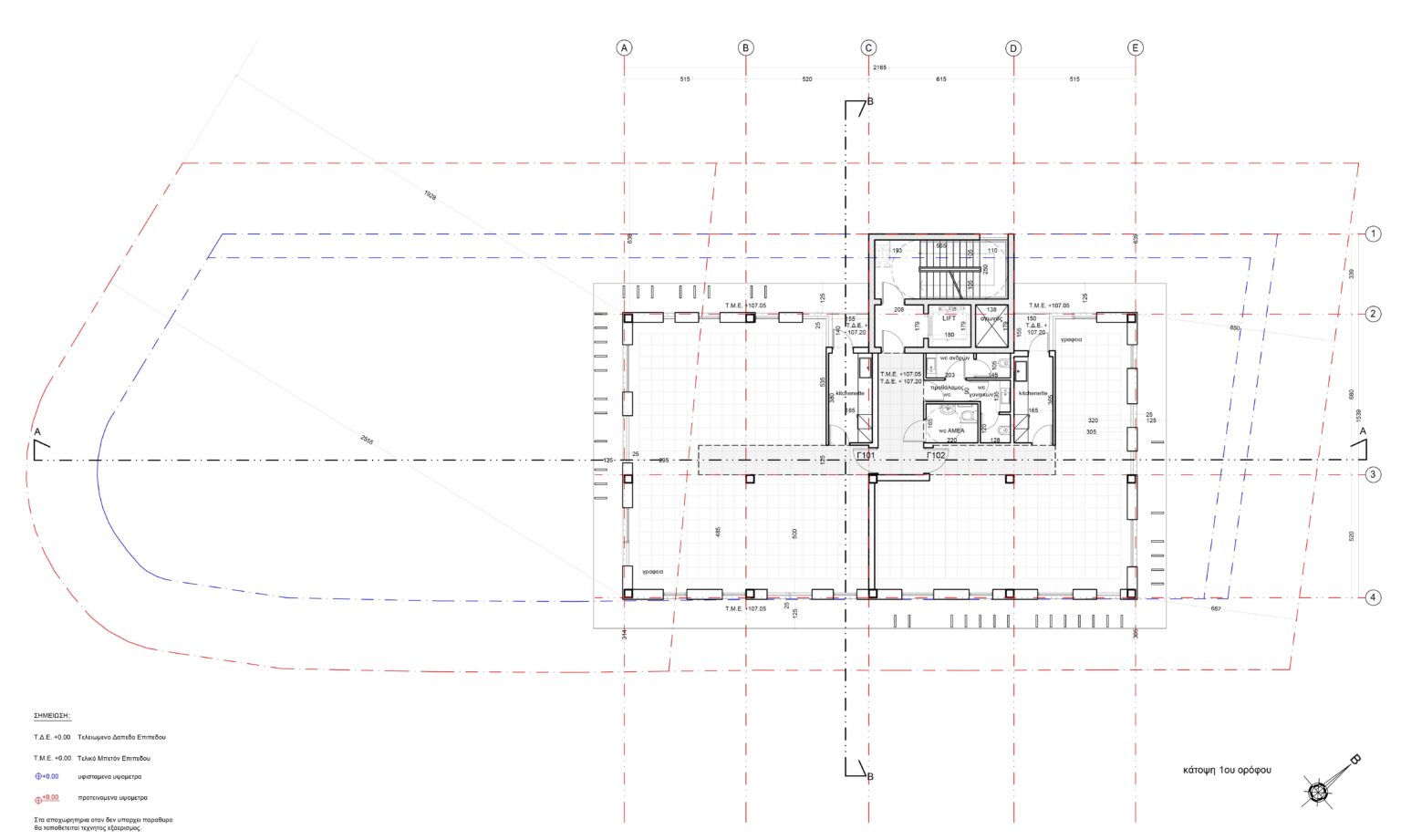
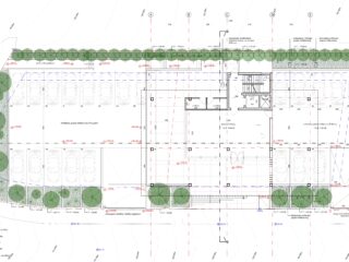
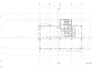
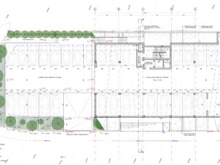
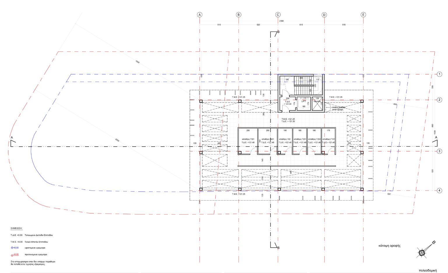
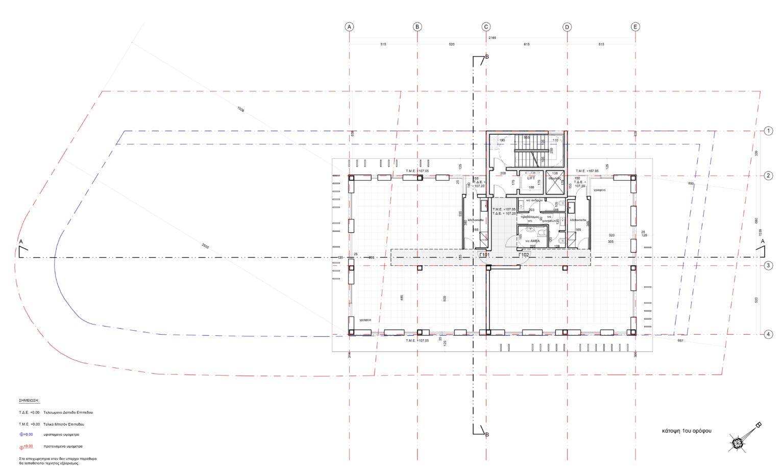
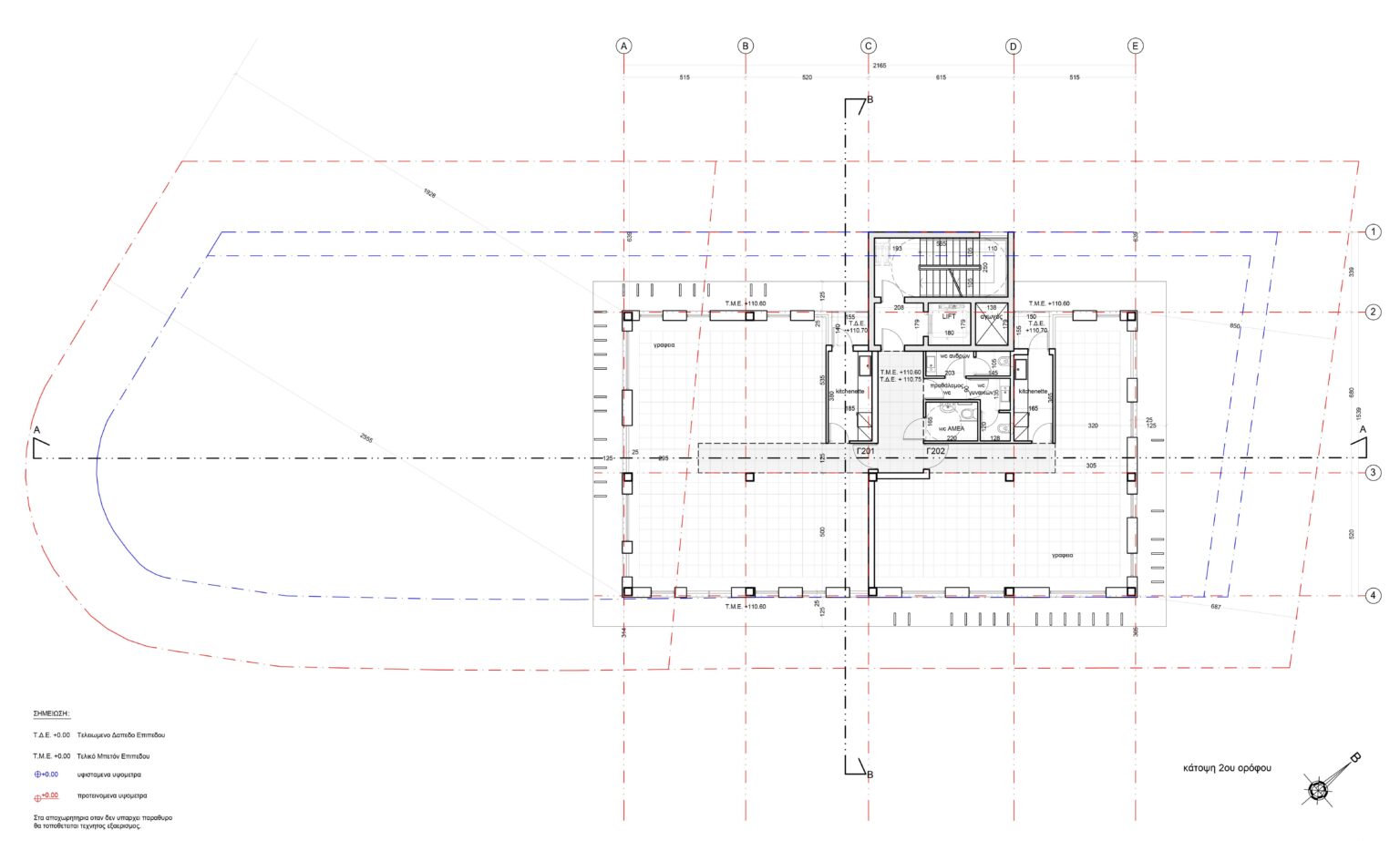
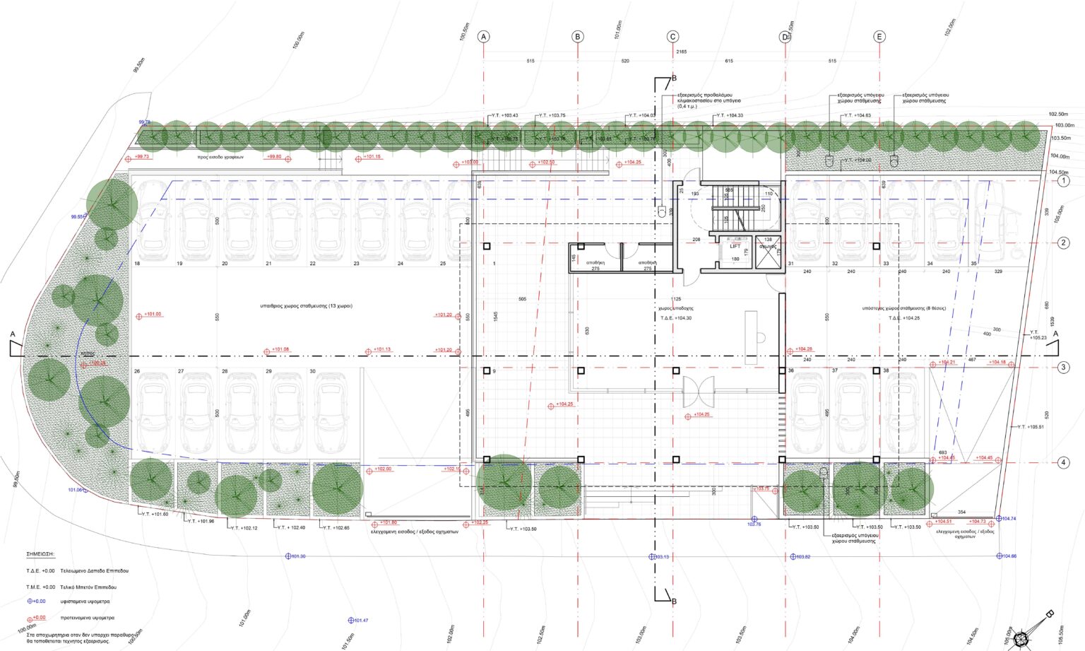
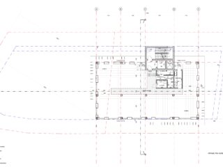
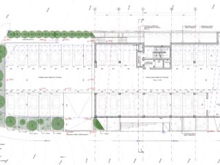
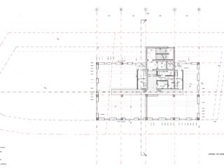
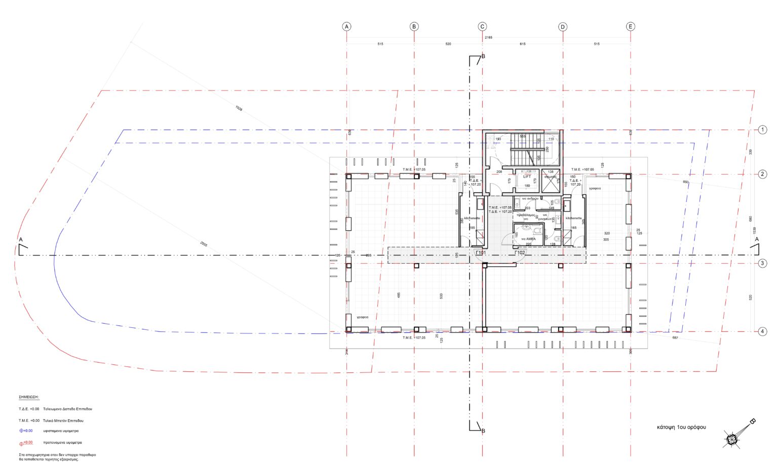
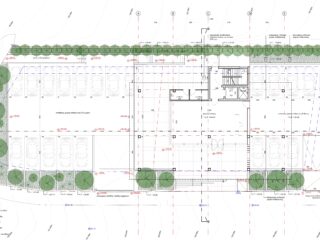
OFFICES F